Nắng House – Tạp chí Kiến trúc Việt Nam
(Văn bản mô tả do KTS cung cấp) Nang House là một ngôi nhà nhỏ, được xây dựng ở vùng ngoại ô nông thôn Hà Nội , nơi quá trình đô thị hóa đang diễn ra ngày càng nhanh chóng, dần phá vỡ cấu trúc nông thôn truyền thống.
Địa điểm: Hà Nội
Kiến trúc sư: Trung Trần Studio
Diện tích: 270m²
Năm: 2025
Ảnh: Triệu Chiến
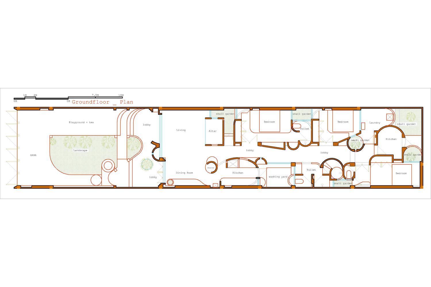
Ngôi nhà được thiết kế cho một gia đình ba thế hệ điển hình ở nông thôn Việt Nam, bao gồm cha mẹ già, một cặp vợ chồng trẻ và con nhỏ. Ngôi nhà được xây dựng trên một khu vườn với nhiều cây cổ thụ; thiết kế giữ nguyên vẹn tất cả các cây cổ thụ hiện có.
Không gian sinh hoạt chính được lùi vào phía sau, nhường chỗ cho sân vườn và gara, cùng với khu vực uống trà ở phía trước. Không gian sinh hoạt chính bao gồm phòng khách, phòng thờ và phòng ăn ở giữa đất, kết nối với 4 phòng ngủ và không gian phụ trợ ở phía sau.
PV/archdaily
Share












