Nhà ống thẳng đứng – Kam and Ly House – Tạp chí Kiến trúc Việt Nam
(Văn bản mô tả do KTS cung cấp) Dự án nhà ở gia đình đơn lẻ theo chiều dọc này bắt đầu từ hai câu chuyện: một câu chuyện rất riêng tư của cặp đôi khách hàng và những nguyên tắc chung chung về các loại hình nhà ở trong điều kiện khí hậu Hà Nội.
Địa điểm: Hà Nội, Việt Nam
Kiến trúc sư: HGAA, Jien Jun, Taewon Park, naïve practice
Diện tích: 320 m²
Năm: 2025
Ảnh: Daisy Ziyan Zhang, Hoang Le
Câu chuyện chung về khí hậu và nhà ở khu vực: Dự án được lấy cảm hứng từ một sơ đồ của Nga thế kỷ 19, trong đó các loại hình nhà ở được phân loại theo vùng khí hậu tương ứng. Bản vẽ này phân chia một chiếc lều nhỏ gọn cho vùng lãnh nguyên, một cabin gỗ nhỏ cho vùng phía bắc, một ngôi nhà khung gỗ cho vùng giữa, và một ngôi nhà rơm xốp với không gian mở rộng rãi cho vùng nhiệt đới. Sơ đồ này cho thấy rõ diện tích nhà ở tăng lên như thế nào khi thời tiết nóng và ẩm hơn. Nhà truyền thống ở Hà Nội tuân theo các nguyên tắc của vùng nhiệt đới.
Ngôi nhà được kết nối với không gian ngoài trời rộng rãi để lưu thông không khí và được bao quanh bởi cây xanh để lọc ánh sáng. Tuy nhiên, sự phát triển hiện đại của thành phố đã tập trung vào việc đáp ứng mật độ dân số tăng theo cấp số nhân thay vì duy trì kiểu nhà ở truyền thống để tạo sự thoải mái nhiệt thụ động. Ngôi nhà này cố gắng kết hợp lưu thông không khí và lọc nắng, những đặc điểm thường thấy trong kiến trúc khu vực, trong bối cảnh hiện đại đông đúc của Hà Nội.
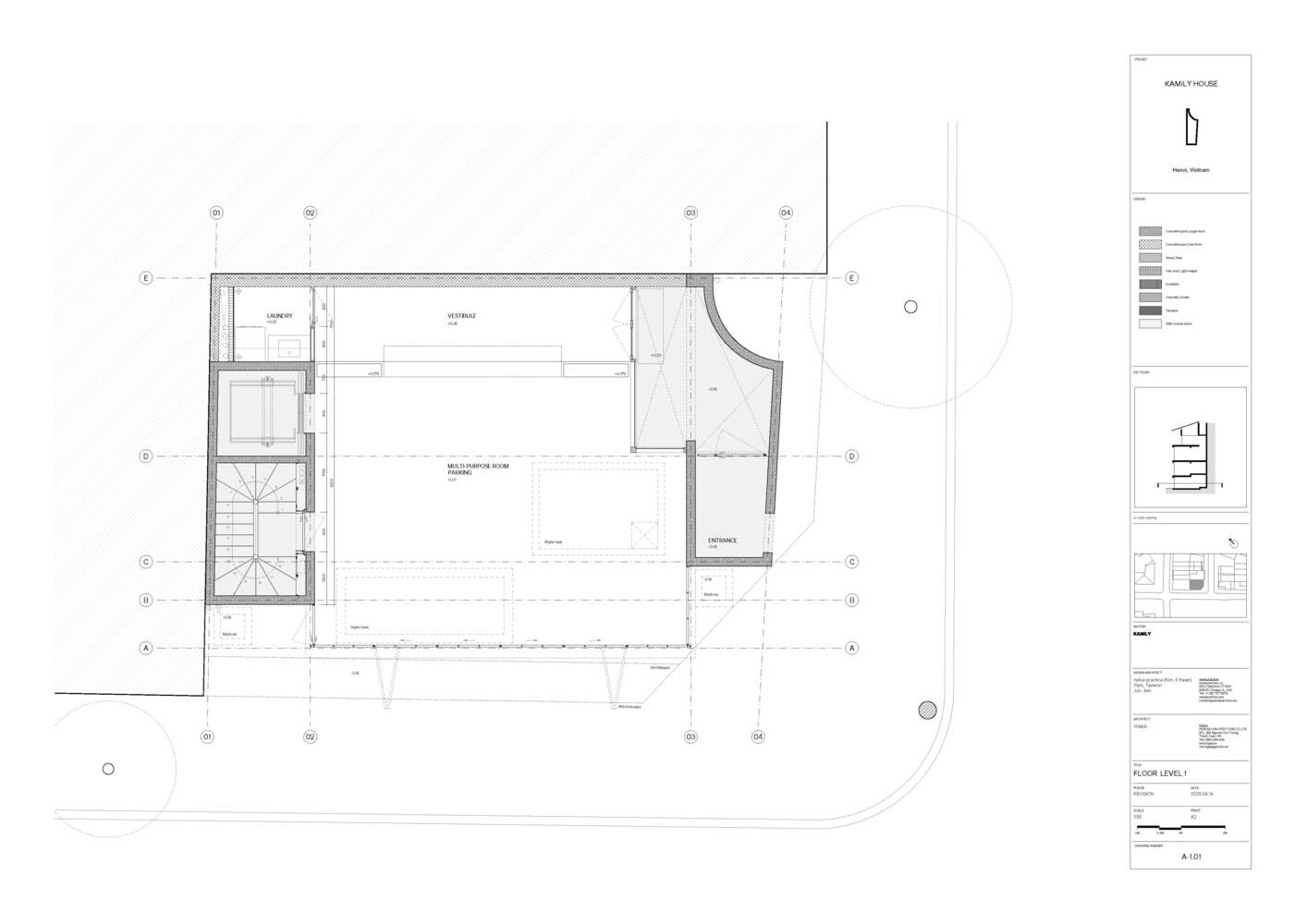
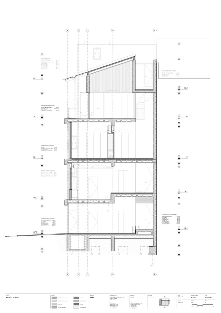
Ngôi nhà được cấu thành từ hai lõi thẳng đứng neo giữ hai đầu đối diện của khu đất, được kết nối bằng một tấm sàn nhịp. Một lõi tạo điều kiện thuận lợi cho việc di chuyển của con người, trong khi lõi còn lại dẫn luồng không khí qua một ống bê tông hở, lọc ánh sáng và dẫn không khí qua một sân bán ngoài trời. Các khoảng trống thẳng đứng nhiều lớp này tạo ra sự thông gió tự nhiên cho toàn bộ không gian sống. Ánh nắng mặt trời phía Tây được điều hòa bởi các mặt tiền có mái che và cửa chớp trượt lõi rỗng. Mặt tiền này có thể mở rộng vào những giờ mát mẻ buổi sáng và buổi tối để đón gió chéo. Mặc dù thiết kế không hướng đến việc trở thành một ngôi nhà thụ động tối ưu về nhiệt, nhưng nó cố gắng mang đến một giải pháp mang tính khu vực cho sự thoải mái về nhiệt trong một điều kiện đầy thách thức: một khu đô thị mật độ cao.
Câu chuyện rất riêng tư của khách hàng: Một cặp vợ chồng đã kết hôn lâu năm tìm kiếm một ý tưởng để giải quyết những khác biệt trong chu kỳ sống của họ. Người chồng bắt đầu ngày mới sớm, còn người vợ đi ngủ gần như ngay khi anh ấy thức dậy. Thay vì ép buộc sự hội tụ, chúng tôi đề xuất duy trì khoảng cách giữa các không gian riêng tư của họ, đồng thời tạo ra nhiều cách gián tiếp để cảm nhận sự hiện diện của nhau và cho phép giao tiếp nhẹ nhàng.
Sự kết nối trực tiếp nhất thể hiện qua ban công bên trong, một khoảng không nhỏ treo lơ lửng giữa một khoảng trống cao, tạo điều kiện cho những tương tác ngắn ngủi giữa hai vợ chồng. Về mặt không gian, các phòng của họ được kết nối theo chiều dọc thông qua hai khoảng trống chung, nơi ánh sáng và âm thanh truyền đi với cường độ khác nhau. Chính những khoảng trống này mang không khí mát mẻ đi khắp nhà, không chỉ tạo ra sự lưu thông nhiệt mà còn mang đến cảm giác sống chung vô hình, tôn vinh nhịp điệu riêng của mỗi người mà vẫn duy trì sự kết nối.
PV/archdaily










