TuPhuong Second House – Tạp chí Kiến trúc Việt Nam
(Văn bản mô tả do KTS cung cấp) Sau đại dịch Covid-19, chủ nhà mong muốn trở về quê hương và xây dựng một ngôi nhà làm nơi sum họp cho gia đình và bạn bè – một nơi nghỉ dưỡng sau hơn 20 năm xa cách với công việc và cuộc sống tại thành phố.
Địa điểm: Phú Thọ
Kiến trúc sư: atelier huu
Diện tích: 110 m²
Năm: 2023
Ảnh: Hiroyuki Oki
Tọa lạc tại một ngôi làng nông thôn thuộc xã Bình Tuyền, tỉnh Phú Thọ, ngôi nhà nằm giữa khung cảnh nông nghiệp vẫn giữ được những nét đặc trưng của vùng nông thôn Bắc Bộ. Dự án nằm gần một lò gạch lâu đời, và lấy cảm hứng từ mong muốn của chủ nhà về một ngôi nhà truyền thống hòa mình vào thiên nhiên, gạch đất nung và gạch đỏ đã được lựa chọn làm vật liệu chính.
Những cây cổ thụ được chủ nhà trồng cách đây hai thập kỷ được bảo tồn cẩn thận và trở thành yếu tố chính định hình bố cục. Những thói quen thường ngày – những cuộc trò chuyện dưới hiên nhà, sự hiện diện của cây cối và nước, vườn tược, và mùi bếp củi là những yếu tố tạo nên vẻ đẹp của cuộc sống nông thôn và dễ dàng nhận thấy trong kiến trúc nông thôn truyền thống – cũng đang dần phai nhạt dưới sự đô thị hóa nhanh chóng, thiếu kiểm soát của các loại hình nhà ở mới.
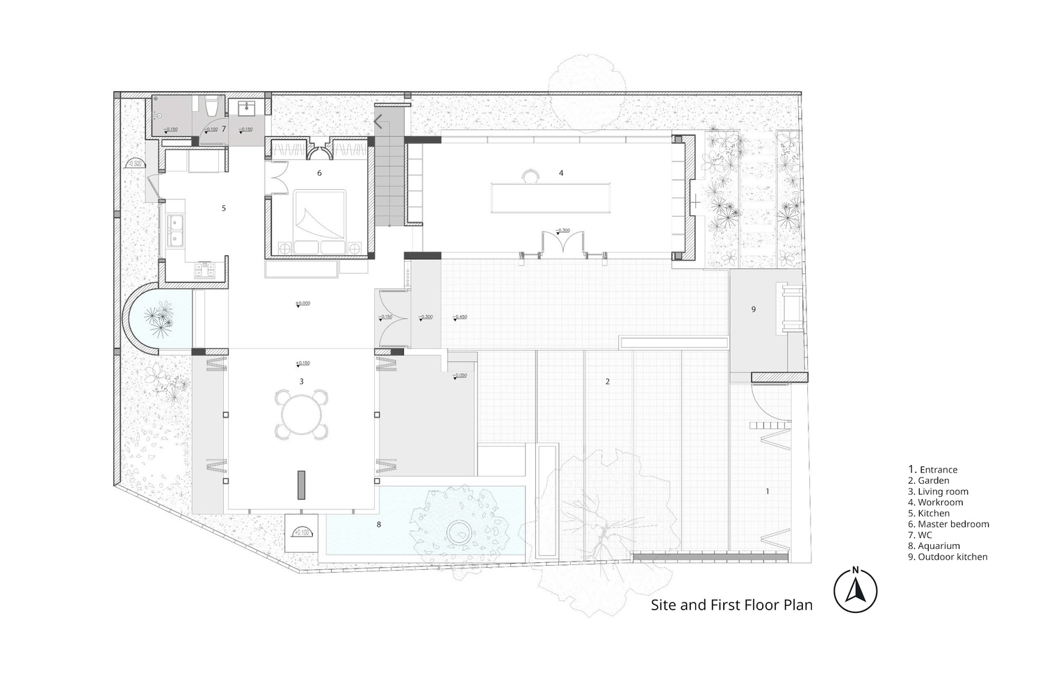
Cuộc sống nông thôn hoàn toàn phù hợp với lối sống kết nối nhiều thế hệ. Do đó, thiết kế tập trung vào việc tạo ra không gian sinh hoạt chung ở tầng trệt, bao gồm phòng khách, phòng làm việc, phòng ngủ, bếp trong nhà và ngoài trời, sân vườn và ao cá.
Cách bố trí không gian này tạo nên bầu không khí ấm cúng cho bữa ăn và các buổi họp mặt gia đình, một không gian làm việc sáng sủa và thoáng đãng, cùng phòng ngủ tối giản nhưng vẫn đảm bảo sự thoải mái khi sinh hoạt. Thiết kế này tránh được lối suy nghĩ phổ biến “càng to càng tốt”, thường dẫn đến việc biến những không gian ít sử dụng thành nơi lưu trữ dụng cụ hoặc hàng hóa bảo quản. Thay vào đó, dự án tận dụng vật liệu địa phương, kỹ thuật thủ công và các yếu tố nông thôn quen thuộc, gợi lên cảm giác gần gũi và thân thuộc.
Trong thời đại mà ranh giới giữa cuộc sống thành thị và nông thôn ngày càng mờ nhạt – nơi những khu vườn xanh tươi đang được thay thế bằng sân ngói và mái tôn, và những ngôi nhà “vô chủ” mới thiếu bản sắc văn hóa – TuPhuong Second House mong muốn trở thành một lời nhắc nhở nhẹ nhàng: nguồn cảm hứng để bảo tồn và trân trọng lại vẻ đẹp yên bình và những giá trị vượt thời gian của kiến trúc nông thôn truyền thống Việt Nam.
PV/archdaily












